KOMFORT EC DBE
Quạt cấp khí tươi hồi nhiệt treo trần.

ĐẶC ĐIỂM
- Quạt cấp khí tươi và hút khí thải hiệu quả cho
các phòng của nhà ở, căn hộ, biệt thự, văn
phòng và các cơ sở thương mại - xã hội.
- Công nghệ thu hồi nhiệt và độ ẩm giúp giảm
tổn thất nhiệt sưởi trong mùa lạnh và giảm
tải cho máy điều hòa không khí trong mùa
nóng trong quá trình thông gió.
- Kiểm soát lưu lượng không khí thay đổi tạo
nên một vi khí hậu thích hợp trong phòng.
Tương thích với ống dẫn khí∅ 160, 200,
250, 315, 400 mm.
THIẾT KẾ
- Vỏ được làm từ các tấm aluzinc hai lớp, bên trong được nhồi lớp bông khoảng 20mm để cách nhiệt và cách âm.
- Vỏ có các giá đỡ cố định với các đầu nối hấp thụ rung động để dễ dàng lắp đặt.
- Các đầu nối để kết nối với ống dẫn khí được đặt ở bên cạnh thiết bị và được bịt kín bằng cao su khi kết nối với ống dẫn khí. Có cửa bảo dưỡng đảm bảo dễ dàng thao tác vào bên trong để làm sạch, thay thế bộ lọc và các hoạt động bảo trì khác.
KOMFORT EC DBE... 300/550/900

KOMFORT EC DBE... 2000/3000

QUẠT
- Cánh quạt bên ngoài sử dụng động cơ EC hiệu quả cao và cánh quạt ly tâm với cách cong ngược để cấp và thải khí hiệu quả nhất.
- Động cơ EC có mức tiêu thụ điện năng trên tỷ lệ lưu lượng không khí tốt nhất và đáp ứng các nhu cầu mới nhất liên quan tới tiết kiệm năng lượng và thông gió hiệu quả cao. Động cơ EC có hiệu suất cao, độ ồn thấp và phạm vi tốc độ hoàn toàn có thể kiểm soát được.
- Cánh quạt được cân bằng động.
LẮP ĐẶT
- Gắn trần với giá đỡ cố định.
- Thiết bị được lắp chính xác phải có khả năng thu gom và thoát nước ngưng tụ cũng như khả năng tiếp cận tốt để tiện cho việc bảo dưỡng.
- Thiết bị có cửa bảo dưỡng nên lắp đặt sao cho thuận tiện cho việc bảo dưỡng nhất.
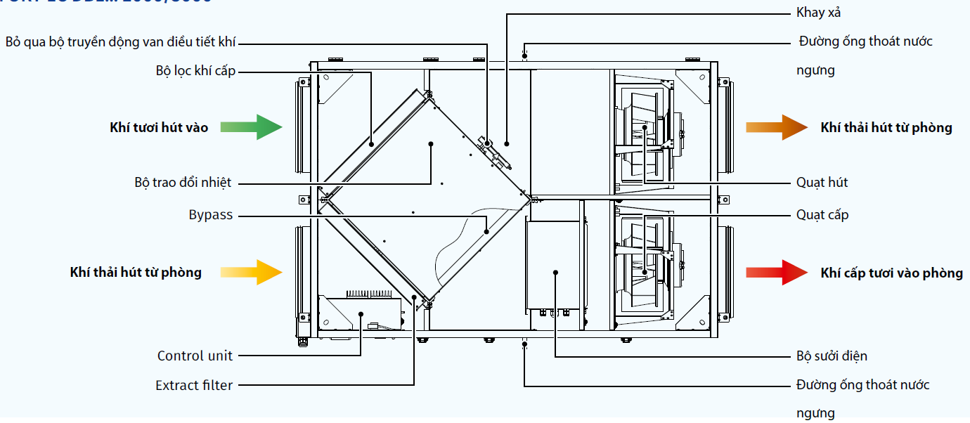
TRAO ĐỔI NHIỆT
- Thiết bị KOMFORT EC DBE 300/550/900 được trang bị bộ trao đổi nnhiệt polystyrene ngược dòng dạng tấm để thu hồi nhiệt. Nước ngưng tụ của thiết bị được thu gom và thoát vào khay thoát nước dưới bộ trao đổi nhiệt.

- Thiết bị KOMFORT EC DBE 2000/3000 được trang bị bộ trao đổi nhiệt ngược dòng dạng tấm entanpi để thu hồi năng lượng (nhiệt và độ ẩm). Do quá trình thu hồi độ ẩm, nước ngưng tụ không được tạo ra trong thiết bị trao đổi nhiệt entanpi.

- Thiết bị KOMFORT EC DBE...-E 300/550/900 được trang bị bộ trao đổi nhiệt ngược dòng dạng tấm entanpi để thu hồi năng lượng (nhiệt và độ ẩm). Do quá trình thu hồi độ ẩm, nước ngưng tụ không được tạo ra trong thiết bị trao đổi nhiệt entanpi.

- Các luồng không khí được tách hoàn toàn trong bộ trao đổi nhiệt. Do đó mùi và chất ô nhiễm không được chuyển từ không khí thải sang không khí cấp.
- Khí thải chuyển hầu hết lượng nhiệt của nó vào luồng khí cấp vào. Thu hồi nhiệt làm giảm tổn thất nhiệt sưởi trong mùa lạnh. Vào mùa hè, bộ trao đổi nhiệt thực hiện sự chuyển đổi đảo ngược và khí cấp vào sẽ được làm mát nhờ bộ trao đổi nhiệt truyền một phần độ lạnh tích lũy từ lượng khí thải. Điều này giúp máy điều hòa không khí hoạt động hiệu quả, ít tốn điện hơn cho phòng được cấp khí tươi.
ĐIỀU KHIỂN TỰ ĐỘNG
- Các thiết bị được trong bị hệ thống tự động hóa tích S21. Bảng điều khiển từ xa không được bao gồm trong bộ giao hàng (mua riêng).
- Bộ điều khiển S21 cho phép tích hợp thiết bị vào hệ thống nhà thông minh hoặc BMS (hệ thống quản lý tòa nhà).
- Thiết bị có thể được điều khiển bằng ứng dụng di động Blauberg AHU qua Wi-Fi.

CHỨC NĂNG TỰ ĐỘNG HÓA

Ý NGHĨA TÊN QUẠT

KÍCH THƯỚC TỔNG THỂ


PHỤ KIỆN




Bước 1: Truy cập website và lựa chọn sản phẩm cần mua
Bước 2: Click và sản phẩm muốn mua, màn hình hiển thị ra pop up với các lựa chọn sau
Nếu bạn muốn tiếp tục mua hàng: Bấm vào phần tiếp tục mua hàng để lựa chọn thêm sản phẩm vào giỏ hàng
Nếu bạn muốn xem giỏ hàng để cập nhật sản phẩm: Bấm vào xem giỏ hàng
Nếu bạn muốn đặt hàng và thanh toán cho sản phẩm này vui lòng bấm vào: Đặt hàng và thanh toán
Bước 3: Lựa chọn thông tin tài khoản thanh toán
Nếu bạn đã có tài khoản vui lòng nhập thông tin tên đăng nhập là email và mật khẩu vào mục đã có tài khoản trên hệ thống
Nếu bạn chưa có tài khoản và muốn đăng ký tài khoản vui lòng điền các thông tin cá nhân để tiếp tục đăng ký tài khoản. Khi có tài khoản bạn sẽ dễ dàng theo dõi được đơn hàng của mình
Nếu bạn muốn mua hàng mà không cần tài khoản vui lòng nhấp chuột vào mục đặt hàng không cần tài khoản
Bước 4: Điền các thông tin của bạn để nhận đơn hàng, lựa chọn hình thức thanh toán và vận chuyển cho đơn hàng của mình
Bước 5: Xem lại thông tin đặt hàng, điền chú thích và gửi đơn hàng
Sau khi nhận được đơn hàng bạn gửi chúng tôi sẽ liên hệ bằng cách gọi điện lại để xác nhận lại đơn hàng và địa chỉ của bạn.
Trân trọng cảm ơn.